Logo Schlossberger Immobilien
Wohnimmobilie > Einfamilienhaus
Besichtigung möglich

"HIGH END-DESIGN TRIFFT BAUBIOLOGIE": TOP-VILLA IM HERZEN VON BERG MIT SAUNA - ERSTBEZUG

82335 Berg
6.000 €

SI-2616
2023
206 m²
500 m²
4
Finanzierungsrechner
Metasuchmaschine in Echtzeit

Die Immobilie

PERFEKTE SYMBIOSE AUS DESIGN UND NATUR

Selten werden Wohnräume in dieser Perfektion gestaltet und mit höchstem Anspruch an Flächenbündigkeit, Design und hochwertigen biologischen Materialien ausgeführt. Leben mit allen Sinnen und stetiger Genuß der harmonischen Architektur stehen hier im absoluten Mittelpunkt.

Das zweigeschossige, frei stehende und überdurchschnittlich puristisch gestaltete Wohnhaus ist eines von insgesamt 6 Gartenhofvillen im Herzen von Berg.

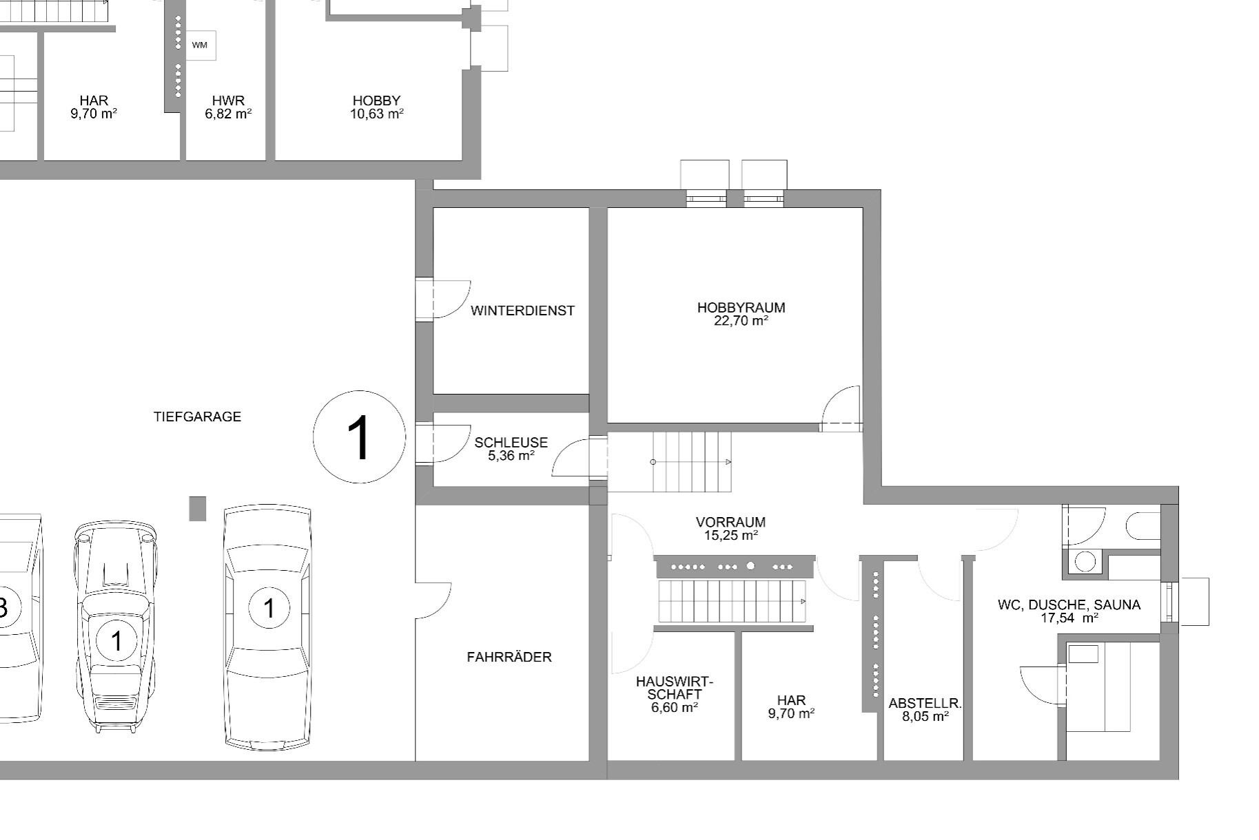
Unter den Häusern liegt eine Tiefgarage mit 13 sehr großzügigen Stellplätzen und einem Fahrradkeller. Über eine eigene Schleuse erfolgt ein eigener direkter Zugang zur Tiefgarage. Im Außenbereich befindet sich ein zusätzlicher Außenstellplatz.

Die einzelnen Häuser sind gegeneinander versetzt, so dass Einblicke weitgehend vermieden werden. Auch die Wohnhöfe werden durch Hecken in ihrer Privatsphäre geschützt. So ergibt sich durch die Lage der Häuser und der Gärten mit der komplexen Führung der Hecken und den eingestreuten Bäumen ein kunstvolles Ensemble, das in seiner Wirkung etwas Gleichwertiges sucht.

Fordern Sie gerne das ausführliche Exposé an, um alle Details zu diesem repräsentativen und exklusiven Angebot zu erhalten.
  • Flächen

    • Wohnfläche: 206 m²
    • Grundstücksfläche: 500 m²
    • Nutzfläche: 44 m²
    • Gartenfläche: 500 m²
    • Zimmer insgesamt: 4
    • Schlafzimmer: 2
    • Badezimmer: 2
    • Etagen: 2
    • Stellplätze: 3
    • Stellplatzart: Tiefgarage, Freiplatz
    • TG-Stellplätze: 3
    • Balkone: 1
    • Balkon-/Terrassenfläche: 64 m²

    Zustand & Erschließung

    • Baujahr: 2023
    • Zustand: Erstbezug
    • Keller: voll unterkellert

    Sonstiges

    Trotz sorgfältiger Prüfung können wir keine Haftung für die Richtigkeit, die Vollständigkeit und die Aktualität der Objektdaten übernehmen. Diese basieren auf uns erteilten Angaben. Ursprüngliche Planungsunterlagen und ursprüngliche Wohnflächenberechnungen können von der Realität und der tatsächlichen Ausführung abweichen. Die im Exposé dargestellten Pläne und Wohnflächenberechnungen dienen der Orientierung und basieren nicht auf einem professionellen Aufmaß. Zwischenvermietung und Zwischenverkauf bleiben vorbehalten.

    Sämtliche Bilder und graphischen Darstellungen in unseren Exposés sind Eigentum von SCHLOSSBERGER IMMOBILIEN und dürfen nicht durch Dritte verwendet bzw. an Dritte weitergegeben werden.

    Wir freuen uns auf Ihre E-Mail, mit der Sie uns bitte Ihren Namen samt vollständiger Anschrift, eine Telefonnummer / Mobilrufnummer sowie Ihre E-Mail-Adresse übermitteln.

    Sie möchten Ihre eigene Immobilie verkaufen oder einfach nur den aktuellen Wert wissen?
    Gerne erhalten Sie von uns ein unverbindliches und kostenfreies Kurzgutachten für Ihre Immobilie. Wir freuen uns von Ihnen zu hören!

    Hilke Schlossberger und Dr. Errit Schlossberger, SCHLOSSBERGER-IMMOBILIEN
    • Immobilie ist verfügbar ab: sofort
    • Nichtraucher-Immobilie: ja
    • Haustiere erlaubt: nein
    • als Ferienimmobilie nutzbar: ja
  • HIER BLEIBEN KEINE WÜNSCHE OFFEN: HIGH-END-AUSSTATTUNG

    Besonderes Augenmerk wurde bei der Planung und Gestaltung auf Harmonie, resultierend aus der Grundform des Quadrates gelegt. Alle Details wurden mit hohem architektonischem Verständnis genau durchdacht und mit Schattenfugen, bündigen Materialübergängen und puristischem Anspruch entwickelt. Hochwertige, natürliche Materialien werden kombiniert mit klarer Formensprache. Design-Fans werden ihre wahre Freude mit allen Sinnen erleben.

    Bauweise
    • ökologischer Holz-Lehmbau mit Holzfaserdämmung
    • Außenanlagen in Natursteinplatten Travertin
    • Holz-Alu Haustür mit aufgesetzten Eiche Massivholz-Lamellen, natur geölt
    • raumhohe, dreifach verglaste Fensterfronten zu den Gärten verbinden den Wohnraum mit der Natur
    • Holz-Alu Fenster innen weiß mit Fensterbänken aus Naturstein
    • teilweise bodentiefe Holz-Alu Fenster
    • außenliegende Absturzsicherung aus Glas im Obergeschoß
    • Als Innenputz in EG und OG geglätteter Lehmputz
    • Alle Innenwände aus Lehmputz haben einen biologischen, weißen Silikatanstrich
    • Wandsockel putzbündig
    • Einbau-Deckenspots und schöne Lichtakzente mit Stufenbeleuchtung
    • Einbruchmeldeanlage
    • Sonnenschutz: Handbetriebene, formschöne Faltschiebeläden und Markise

    Einbauküche grifflos in weiß mit farblich abgesetzten Corian-Arbeitsplatten, Bora-Abzug, Induktionskochfeld, Spülmaschine, Kühlschrank, Marken-Backofen und Quooker-Armatur (auch direkt z.B. für kochendes Wasser aus dem Hahn) sowie viel Stauraum

    Garderobenschrank vom Schreiner in zeitlosem weiß, flächenbündig, deckenhoch und grifflos
    Vorhangschienen, Bilderleisten und helle, zeitlose Vorhänge in fast allen Zimmern bereits montiert.

    Bäder
    • In den großzügigen Bädern Ganzglas-Duschtrennwände
    • Corian-Waschbecken-Unterschränke mit Schubladen vom Schreiner angefertigt
    • Ablagen in den Duschen teilweise mit LED-Stripes
    • Im Gäste-WC (EG) Corian-Becken inkl. Unterschrank
    • Bäder im Obergeschoss mit Dusch-WC
    • Bäder mit einer zusätzlichen Spiegelbeleuchtung sowie integrierter Spiegelheizung
    • hochwertige Armaturen und Badezimmeracessoires von der Firma Vola in Edelstahl
    • formschöne Handtuchheizkörper von Vola

    Haustechnik
    • Fußbodenheizung mit individueller Regulierung
    • Waschbecken-Unterschränke mit Schubladen vom Schreiner angefertigt
    • Treppenstufen-Beleuchtung
    • minimalistische Deckeneinbau-Spots
    • energiesparende Sole-Wasserwärmepumpe
    • Rauchmelder für Flur- und Schlafräume
    • Türsprechanlage der Fa. Siedle inkl. Smart Touch Bedienung
    • zentrale Lüftungsanlage mit Wärmerückgewinnung
    • Video- und Sprechanlage mit Smart Touch Bedienung, Briefkasten etc.
    • Alarmanlage
    • Schalterprogramm puristisch weiß
    • SAT-Anlage
    • im UG Steuerung der Beleuchtung über Bewegungsmelder
    • im UG befindet sich für den Hauswirtschaftsraum bzw. die Waschküche ein Ausgussbecken und eine Stellfläche für eine Waschmaschine

    Tiefgarage
    • 2 Tiefgaragenstellplätze und 1 Außenstellplatz
    • An den Stützen der Stellplätze in der Tiefgarage eine Ladestation für ein E-Auto
    • Über eine Schleuse direkter Zugang vom Haus zur Tiefgarage
    • Elektrisches Rolltor einbruchsicher
    • Elektrisch beheizte Rampe
    • Hauszugang aus der Tiefgarage mit einer Türsprechanlage der Fa. Siedle inkl. Smart Touch Bedienung

    Außenanlagen
    • Sträucher und Hecken, Rasenflächen sowie hochwertige Bäume (Apfel, japanische Kirsche, Felsenbirne, ..)
    • Terrassen mit Natursteinplatten aus Travertin, 60 x 60 cm
    • Wege und Auffahrtsflächen der einzelnen Häuser als Natursteinpflaster Travertin
    • Straßenseitig eine Alu-Zaunanlage (Fabr. Colibri) mit einflügeligen Eingangs- und zweiflügeligen Zufahrtstoren (Fabr. Balu) mit jeweils einer Briefkastenanlage, Klingel, Sprech- und Videoanlage (Fabr. Siedle Steel Serie) an den Hauseinfahrten
    • Mülltonnen-Einfriedung, verzinkt und lackiert
    • Gitterzaun straßenseitig und als Grundstückseinteilung

    Treppen
    • Die Treppen sind als Stahl-Wangen-Konstruktion, pulverbeschichtet weiß mit Trittstufen Eiche geölt
    • Die Stufen aller Treppenanlagen werden durch elegante Wandleuchten beleuchtet (sowohl innen als auch außen).
    • Eingespannte 2-teilige VSG-Glaswand an der Innentreppe EG-OG

    Küche
    • In der Küche ist eine Küchenzeile wandseitig in voller Höhe vorhanden und ein Küchenblock mit Spülbecken und Kochfeld
    • grifflose Einbauküche, große Corian-Arbeitsplatte mit integrierter Spüle, Quooker für kochendes Wasser aus der Armatur
    • Besteckschubladen
    • LED-Beleuchtung

    Teil-Möblierung
    • Master-Schlafzimmer mit Kommode
    • Schlafzimmer mit Kleiderschrank
    • 3. Zimmer mit Einbauschränken
    • Garderobenschrank
    • Hauswirtschaftsraum praktisch möbliert
    • Hobbyram mit Kommode an der Wand, Kommode in Raummitte, Kleiderschrank
    • hochwertige Design-Sauna

    • Art der Ausstattung: luxuriös
    • Befeuerung: Erdwärme
    • Bodenbelag: Stein, Parkett
    • Badausstattung: Dusche, Fenster im Badezimmer, Bidet
    • Küche: Einbauküche
    • Abstellraum
    • Gartennutzung
    • Gäste-WC
    • Sauna
    • Energieausweis-Art: Bedarf
    • Energieausweis gültig bis: 31.05.2031
    • Endenergiebedarf: 26,30 kWh/(m²*a)
    • Primärenergieträger: Erdwärme
    • Energieeffizienzklasse: A_PLUS
    • Energieausweis-Ausstellungsdatum: 07.05.2021
    • Energieausweis-Jahrgang: ab Mai 2014
    • Energieausweis-Gebäudeart: Wohngebäude
    A+
    26,30 kWh/(m²·a)
    A
    B
    C
    D
    E
    F
    G
    H
    • Kaltmiete: 6.000 €
    • Stellplatzmiete (Tiefgarage): 100 €

Lage und Infrastruktur

Wohnen, wo andere Urlaub machen.
Berg am beliebten Ostufer des Starnberger Sees gehört zu den privilegiertesten Wohnlagen im Großraum München.

Die High-End-Design-Villa liegt ruhig und sonnig zentral in Berg nur wenige Fußminuten zu vielfältigen, gastronomischen Angeboten, REWE, Bäcker, Eisdiele, Bio-Gemüse und Bushaltestelle nach Starnberg.

Berg ist ein außergewöhnlicher Ort am Starnberger See, den schon König Ludwig II. in sein Herz geschlossen hat. Nicht nur die wundervollen Sonnenuntergänge sondern das gesamte Ambiente am und um den See zeugt von einer selten anzutreffenden, hohen Wohn- und Lebensqualität.

Genießen Sie Wassersport und die Natur sowie die sehr gute Infrastruktur für Kinder, Einkaufsangebote und vielfältige Gastronomie. Hier wohnen Sie perfekt im alten Ortskern ruhig, aber doch sehr zentral.

Anrufen
Immobilienbewertung
menucross-circle